Старый контейнер может обрести вторую жизнь благодаря правильной покраске. Этот процесс не только улучшает внешний вид, но и значительно продлевает...
Дизайн гостиной
get_images(google_search.search("Фото ремонта дизайн интерьера гостиной"))
Современная гостиная для квартиры в новостройке Цветовая палитра: Нейтральные цвета: белый, серый, бежевый Акцентные цвета: синий, зеленый, оранжевый Мебель: Модульный...
Дизайн-проект проходной кухни-гостиной Цель: Создать функциональное и стильное пространство, которое соединяет кухню и гостиную, обеспечивая легкий доступ и открытый поток....
Дизайн гостиной с двумя окнами в хрущевке Цветовая палитра: Светлые тона (белый, бежевый, светло-серый) для визуального расширения пространства. Яркие акценты...
Стеклянные панорамные двери Раздвижные двери Французские двери Би-фолд двери Подъемно-сдвижные двери Деревянные балконные двери Рамы из алюминия и других металлов...
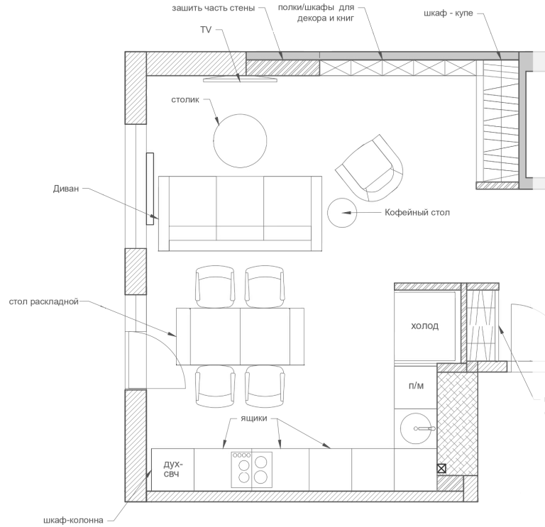
Дизайн-проект планировки гостиной-кухни Общие принципы: Максимальное использование естественного света Создание функционального и удобного пространства Комбинирование различных зон (отдых, прием пищи,...
Дизайн гостиной с присоединением лоджии Цель: Создать просторную и комфортную гостиную за счет объединения с лоджией. Планировка: Демонтировать стену между...
Гостиная Цветовая палитра: Нейтральные тона (бежевый, белый, серый) с акцентными цветами для оживления пространства. Мебель: Удобный диван, кресла, подставки для...
Дизайн 1: Современный минимализм Преобладание нейтральной цветовой палитры (белый, серый, черный) Элегантные линии и простые формы Минимальное количество мебели и...
Современный дизайн гостиной в Италии Современный итальянский дизайн гостиной отличается элегантностью, функциональностью и использованием высококачественных материалов. Вот некоторые важные характеристики:...
Традиционный Цветовая палитра: Теплая и уютная, с акцентами из красного, синего и зеленого. Материалы: Дерево, камень, кожа. Декор: Камин, молдинги,...