11 апреля 2026

garantr.ru

Новости в мире строительства и ремонта

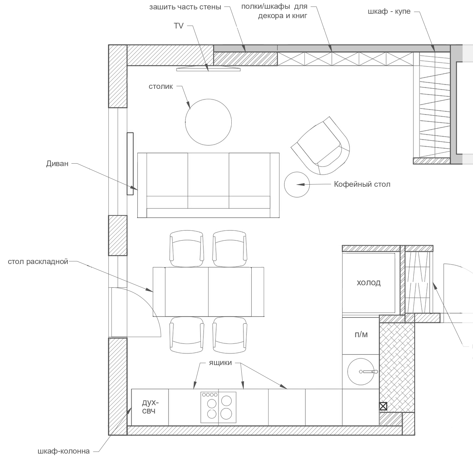
Дизайн проект планировка гостиной кухни

Дизайн-проект планировки гостиной-кухни

Общие принципы:

Максимальное использование естественного света
Создание функционального и удобного пространства
Комбинирование различных зон (отдых, прием пищи, приготовление пищи)
Выбор стилистического оформления в соответствии с предпочтениями владельцев

Планировка:

Зона гостиной:

Расположение дивана и кресел напротив телевизора или камина
Достаточно места для журнальных столиков и дополнительного сиденья
Большие окна для естественного освещения

Зона кухни:

L-образная или U-образная планировка для максимальной эффективности
Встроенные приборы для экономии места и удобства
Остров или полуостров с дополнительной рабочей поверхностью и сидячими местами

Зона столовой:

Обеденный стол, соответствующий количеству мест
Достаточное расстояние между столом и стульями для комфортного передвижения
Возможность размещения буфета или серванта для хранения

Разделение зон:

Различные напольные покрытия (например, паркет в гостиной, плитка на кухне)
Перегородки или раздвижные двери
Разные уровни потолка или освещение

Стилистическое оформление:

Выбор стиля, соответствующего общему интерьеру дома
Сочетание цветов и материалов, обеспечивающих гармонию
Включение декоративных элементов, таких как картины, растения или текстиль

Освещение:

Многоуровневое освещение для создания различной атмосферы
Направленный свет над рабочими поверхностями
Мягкий рассеянный свет в зоне гостиной
Акцентное освещение для декоративных элементов

Мебель и декор:

Удобная и стильная мебель, соответствующая размерам помещения
Хранение вещей в виде встроенных шкафов, буфетов или полок
Текстиль (шторы, подушки, пледы) для придания тепла и уюта
Растения для добавления свежести и жизни

Дополнительные рекомендации:

Рассмотрите возможность использования многофункциональной мебели (например, диван-кровать или стол-трансформер)
Уделите внимание звукоизоляции между гостиной и кухней
Обеспечьте достаточную вентиляцию на кухне
Убедитесь, что розетки и выключатели расположены удобно

Читать статью  Дизайн штор в кухню гостиную с балконом

Добавить комментарий

Ваш адрес email не будет опубликован. Обязательные поля помечены *

Copyright © Все права защищены. | Newsphere от AF themes.