17 февраля 2026

garantr.ru

Новости в мире строительства и ремонта

Дизайн проект с чертежами кухня гостиная

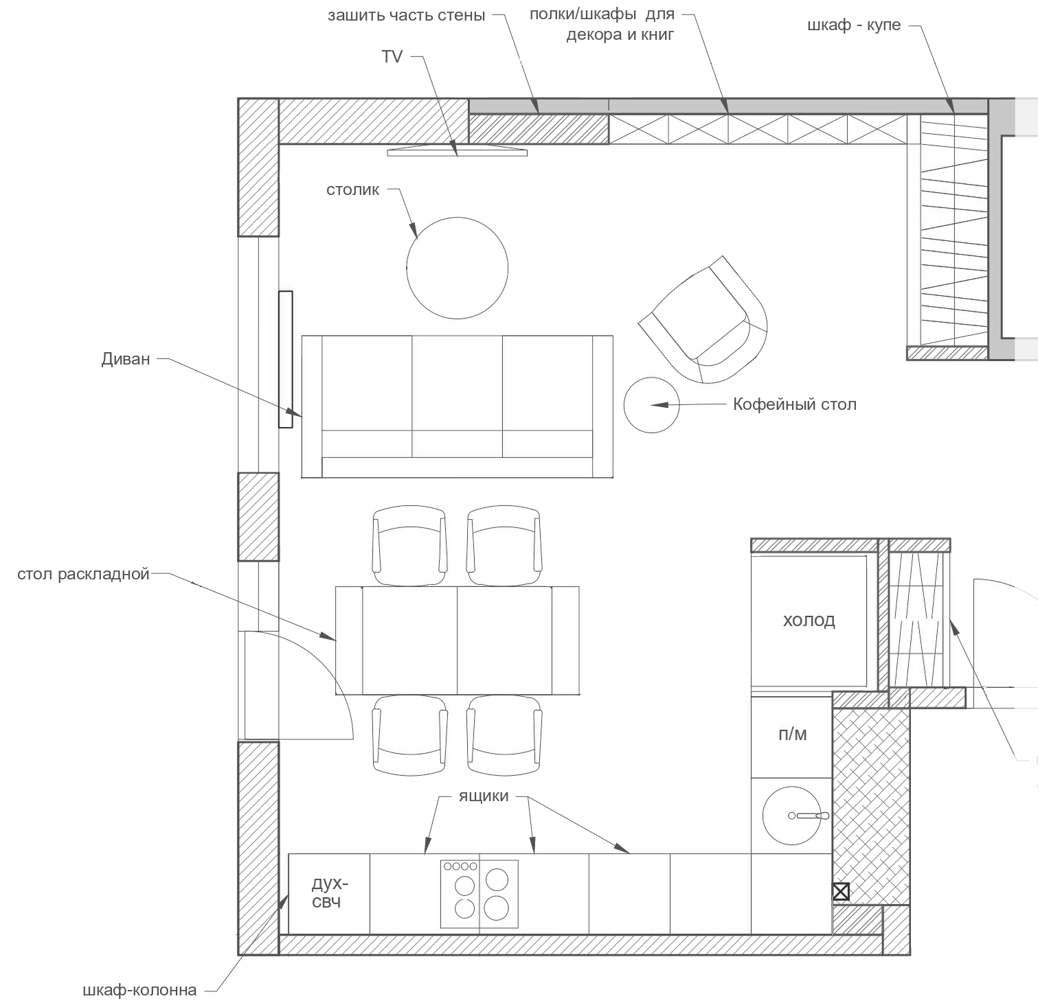
Дизайн-проект кухни-гостиной

Чертежи:

План помещения:

Показан общий размер и форма комнаты
Обозначены стены, окна и двери
Указаны размеры в футах или метрах

План мебели:

Расположение мебели, включая шкафы, диваны и стулья
Указаны размеры мебели
Определены проходы и рабочие зоны

План освещения:

Размещение осветительных приборов, таких как люстры, бра и торшеры
Указаны типы светильников и количество источников света
Определены зоны освещения для различных задач

План отделки:

Указаны материалы для напольного покрытия, настенных покрытий и потолка
Определены цвета и узоры для стен и мебели
Указаны декоративные элементы, такие как картины и вазы

Детализированные чертежи:

Крупномасштабные чертежи отдельных элементов, таких как кухонные шкафы или камин
Указаны размеры, материалы и отделка
Включают подробную информацию о конструкции и установке

Другие документы:

Визуализации интерьера (рендеры или фотографии)
Паспорт отделки (список используемых материалов)
Ведомость мебели и оборудования (перечень всех элементов мебели и техники)

Читать статью  Красивые гостиные комнаты в доме дизайн

Добавить комментарий

Ваш адрес email не будет опубликован. Обязательные поля помечены *

Copyright © Все права защищены. | Newsphere от AF themes.